Deko 169

Deko 169 on avara ja valoisa koti, jonka tilat on huolella suunniteltu ja perheen yhteisiin tiloihin panostettu.

Deko uutuusmalli
True

Moderni koti avaralla pohjaratkaisulla

Deko 169 talomallissa näyttävyys ja arjen toimivuus linkittyvät saumattomasti. Jo eteisestä aukeaa huikea läpitalon näkymä ja olohuoneen kruunaa korkea avoin tila. Keittiön yhteydessä on kätevä pantry, jonka ansiosta keittiön kaapistot on saatu sijoitettua toimivasti yhdelle seinälle. Yläkerran toimivuutta lisäävät kaksi vaatehuonetta ja kirsikkana kakun päällä on vanhempien makuuhuoneen yhteydessä oleva parveke.

Huoneistoala: 144m²

Kerrosala: 169m²

Makuuhuoneita: 4 kpl

Kerrokset: 2 krs

Näyttävä sisäänvedetty kuisti toivottaa vieraat ja perheenjäsenet tervetulleeksi. Sisääntultaessa eteisestä avautuu näkymä olohuoneeseen ja osittain myös keittiöön. Isot ikkunat avartavat oleskelutiloja ja luonnonvalo tulvii sisään. Kodin sydän on korkea olohuone, johon kodin muut tilat liittyvät ja avautuvat. Saarekkeellinen keittiö on osittain eri tilaa olohuoneesta, mutta keskusteluyhteys säilyy kokkailun lomassa olohuoneessa olevien kanssa. Keittiötä valaisee isot ikkunat ja tila jatkuu luontevasti tarvittaessa terassin puolelle.

Yhteisten oleskelutilojen lisäksi alakerrasta löytyy eteisen vierestä saunatilat sekä wc. Myös yksi makuuhuone on sijoitettu alakertaan ja se toimii hyvin esimerkiksi työ- tai vierashuoneena.

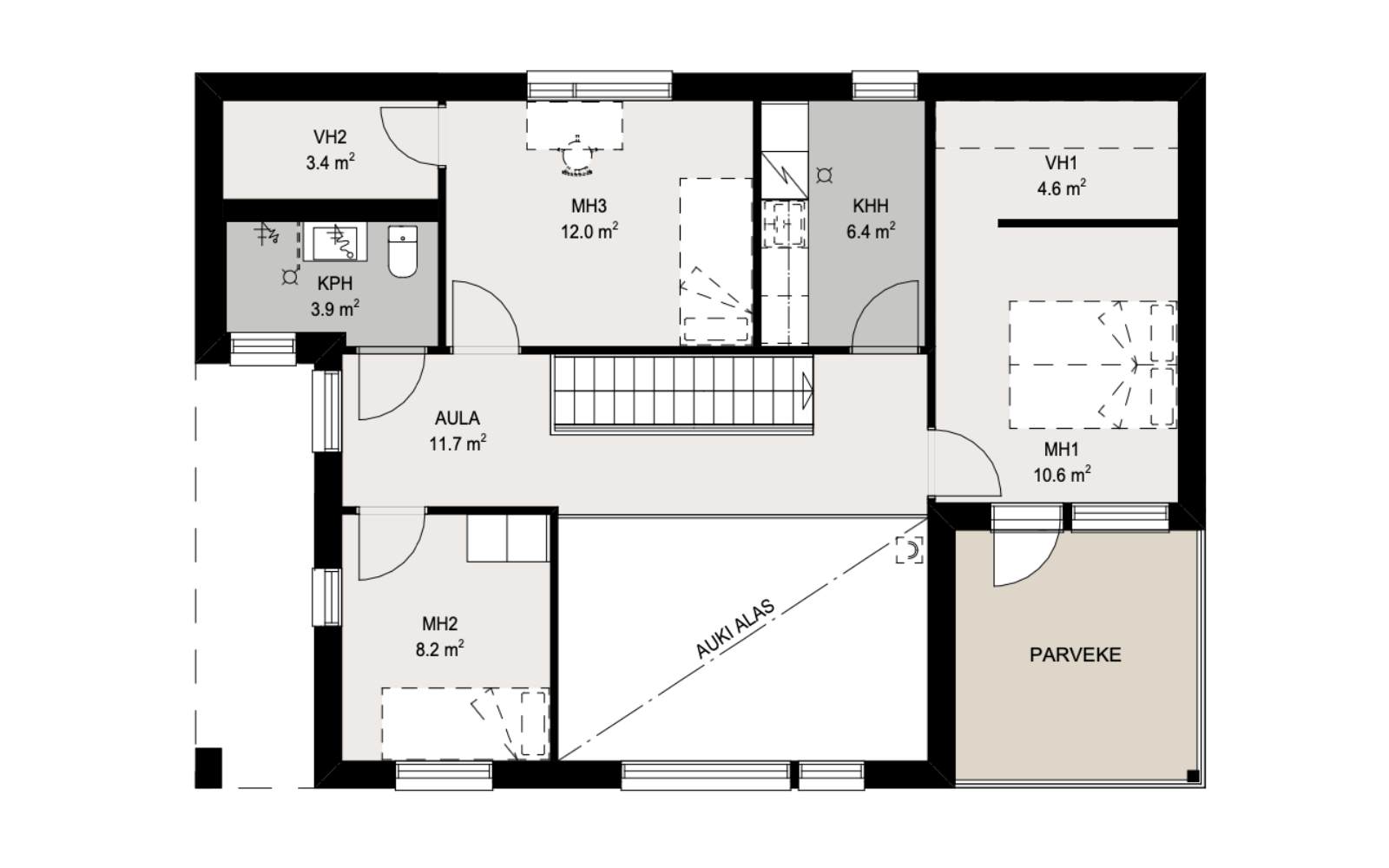
Jos kodin alakerta on suunniteltu perheen yhteisiin hetkiin, tarjoaa yläkerta omaa tilaa rauhoittumiseen ja lepoon. Yläkerrassa on kolme tilavaa makuuhuonetta, joista kahden isomman yhteydessä on tilavat vaatehuoneet. Toisesta kerroksesta löytyy myös kodin toinen kylpyhuone sekä kompakti kodinhoitohuone helpottamaan perheen arkea. Päämakuuhuoneen yhteydessä on myös käynti parvekkeelle.

Deko 169 on ajaton ja moderni koti, jonka pohjaratkaisu on huolella suunniteltu ja toimiva erilaisille perheille. Julkisivu on konstailematon, mutta helposti muokattavissa omien mieltymysten ja kaavamääräysten mukaan. Esimerkiksi suosittu pystyulkoverhous antaa latomaista ilmettä talolle, kuten Tuusulan Asuntomessukohteemme Dekotalo Ruudissa, joka on muunnelma tästä talomallista!

Olisko Deko 169 sinun perheen unelmien koti? Kerromme mielellämme lisää tästä talomallista ja miten siitä voidaan muokata teille sopiva koti. Ota yhteyttä oheisella lomakkeella.

Tämä talomalli on uudistettu versio Deko 175 -talomallista.

Deko 169

Talomallin Deko 169 muut tyylisuunnat

Asiakasversioita

Tästä mallista ei ole vielä esimerkkejä asiakasversioista.

Muokkaa talo mieleiseksesi

Voit valita taloon yhden valmiista tyylisuunnistamme tai yhdistellä eri tyylisuuntia. Ulkoverhouksella, kattomuodolla ja terasseilla saat lisättyä taloosi yksilöllistä ilmeikkyyttä.

harjakatto

Harjakatto
Hillitty ja ajaton

murrettu harjakatto

Murrettu harjakatto
Ilmeikäs vaihtoehto

epasymmetrinen harjakatto

Epäsymmetrinen harjakatto
Modernia tyylikkyyttä

pulpettikatto

Pulpettikatto
City-ympäristöön täydellinen

Kysy lisää