Tässä kodissa on alakertaan on sijoitettu pesu- ja saunatilojen lisäksi myös perheen yhteiset oleskelutilat, sekä yksi makuuhuoneista. L-mallisessa keittiössä valmistuu isompikin ateria ja yhtenäinen tila olohuoneen kanssa mahdollistaa myös vieraiden kanssa seurustelun. Kesällä kekkerit jatkuu luontevasti katetun terassin puolelle. Kelien viiletessä tunnelmoidaan takkatulen ääressä.
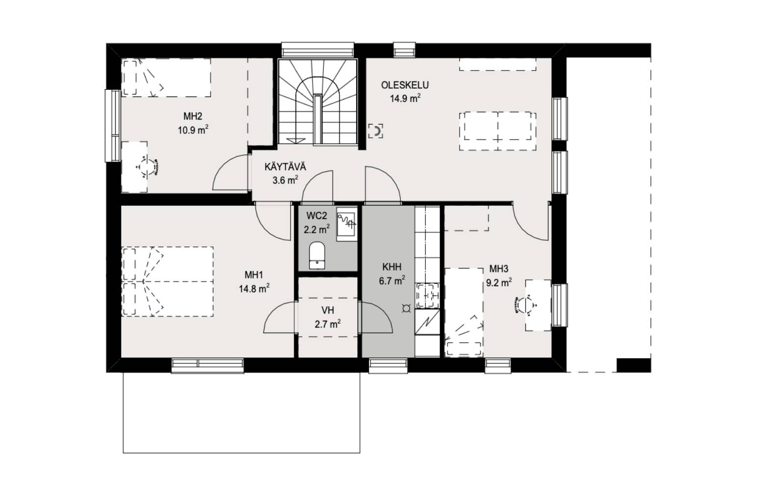
Yläkerrassa on kodin kolme muuta makuuhuonetta sekä kodinhoitohuone ja vessa. Yhden makuuhuoneen yhteydessä on myös käytännöllinen vaatehuone. Yläkerran aulatilasta voi luoda olekeskelutilat esimerkiksi perheen nuorisolle tai jättää tila auki, jolloin olohuone muuttuu korkeaksi ja avaraksi.
Deko 160A on viihtyisä koti, jonka sydän on olohuone-keittiö kokonaisuus! Julkisivultaan yksinkertainen mutta näyttävä talomalli, jonka ilmeikkyyttä voi muokata esimerkiksi kattomuotoa vaihtamalla.
Kiinnostuitko ja haluat lisätietoa Deko 160A talomallista? Ota yhteyttä oheisella lomakkeella ja aloitetaan teidän unelmien kodin suunnittelu.
Tämä talomalli on uudistettu versio Deko 165 B -talomallista.


