Deko 128

Deko 128 on käytännöllinen ja toimiva koti. Päätysisäänkäynnin ansiosta tämä tilaihme sopii hyvin pienellekin tontille!

Deko uutuusmalli
True

Käytännöllinen tilaihme pienelle tontille

Deko 128 on tyylikäs koti aktiiviselle perheelle. Tämän uutuusmallin kodin tilat ovat toimivia ja neliöt hyödynnetty tehokkaasti. Kodin sisäänkäyntiä suojaa katettu avokuisti. Kätevästi heti eteisen yhteydessä ovat pesutilat ja arjen toimivuutta tuova arkieteinen. Aulasta avautuu avara olokeittiö, joka on kodin sydän. Yhtenäisessä olokeittiössä kotikokki voi helposti seurustella perheen tai vieraiden kanssa ruoanlaiton lomassa.

Huoneistoala: 107m²

Kerrosala: 128m²

Makuuhuoneita: 3 kpl

Kerrokset: 2 krs

Olokeittiö kylpee luonnonvalossa, sillä isot ikkunat ovat kahteen suuntaan. Syksyn tullen kelien viiletessä ja iltojen pimetessä voi nauttia sohvalla takkatulen loimusta teekuppi kädessä.

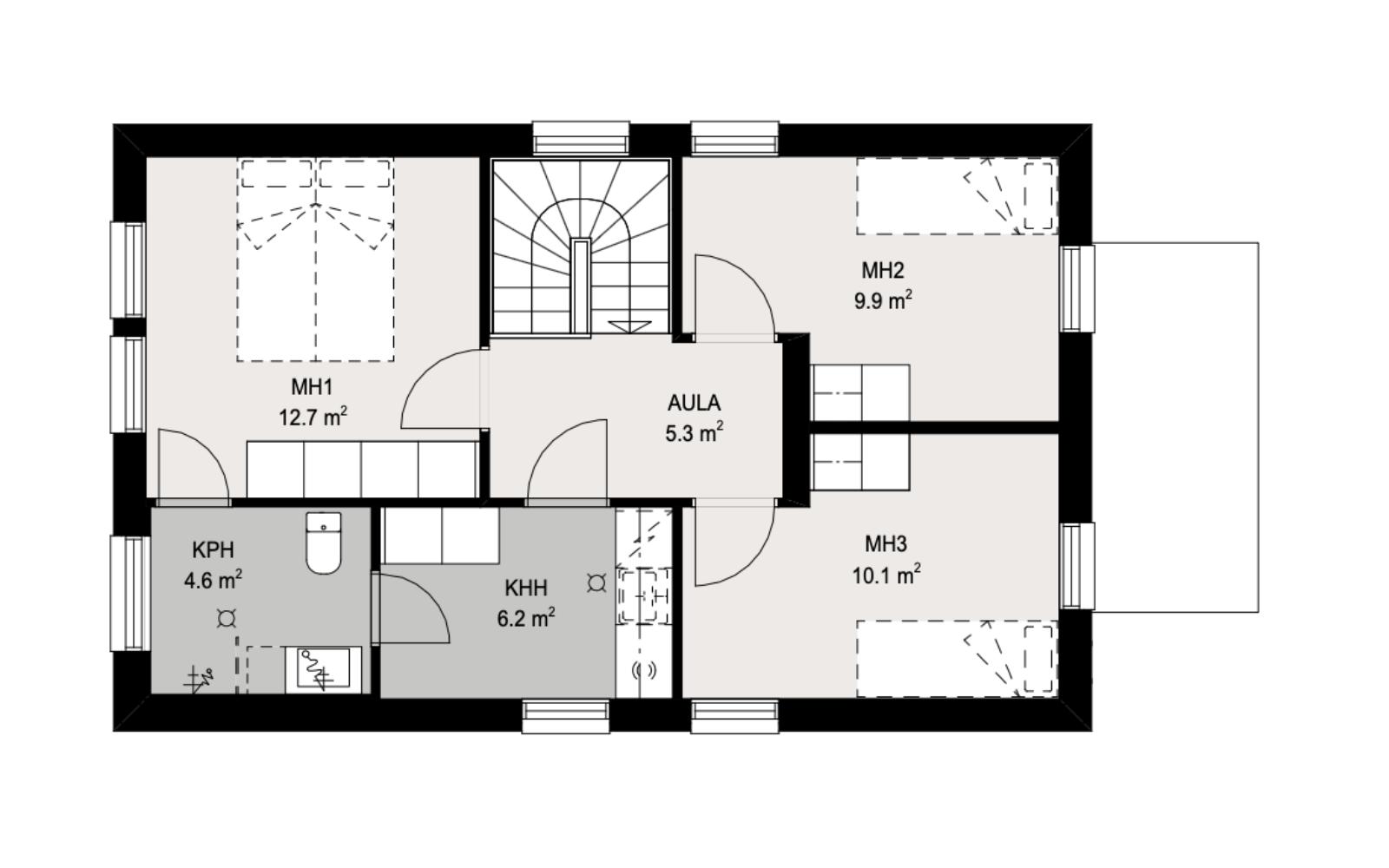
Makuuhuoneet on sijoitettu yläkerran rauhaan. Tämän talon neliöihin on mahdutettu kolme makuuhuonetta, joista pienimmän voi muuttaa vaikka työhuoneeksi. Kodinhoitohuoneen sijoittaminen makuuhuoneiden kanssa yläkertaan helpottaa arjen pyykkihuoltoa.

Tämä kapea talomalli on yksi Dekotalon asiakkaiden suosikeista, sillä se soveltuu hyvin tämän päivän tiiviille ja kapeille kaupunkitonteille. Talo sopii myös julkisivultaan hyvin urbaaniin maisemaan, sillä isot ikkunat ja pulpettikatto antavat talolle modernin ja selkeän ilmeen. Ihastuitko sinäkin Deko 128 talomalliin? Kysy lisää talomallista tai miten siitä voidaan muokata teille sopiva koti. Ota yhteyttä oheisella lomakkeella.

Tämä talomalli on uudistettu versio Deko 125 -talomallista.

Deko 128

Talomallin Deko 128 muut tyylisuunnat

Asiakasversioita

Tästä mallista ei ole vielä esimerkkejä asiakasversioista.

Muokkaa talo mieleiseksesi

Voit valita taloon yhden valmiista tyylisuunnistamme tai yhdistellä eri tyylisuuntia. Ulkoverhouksella, kattomuodolla ja terasseilla saat lisättyä taloosi yksilöllistä ilmeikkyyttä.

harjakatto

Harjakatto
Hillitty ja ajaton

murrettu harjakatto

Murrettu harjakatto
Ilmeikäs vaihtoehto

epasymmetrinen harjakatto

Epäsymmetrinen harjakatto
Modernia tyylikkyyttä

pulpettikatto

Pulpettikatto
City-ympäristöön täydellinen

Kysy lisää