Taloesittely
Tuusula
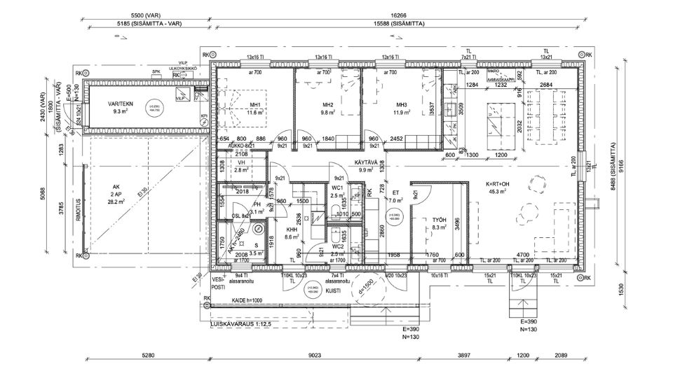
3mh, th, oh+k+rt, vh, 2wc, khh, ph, s
Esittelyssä autokatoksella ja 9m² varastolla varustettu talo, jonka pohjaratkaisu on asiakkaan kanssa yhteistyössä suunniteltu heille toimivaksi. Talon sydän on Puustellin hieno keittiö, joka olohuoneeseen yhdistettynä löytyy talon päädystä. Kaksi vessaa runsaalla säilytystilalla lisäävät asumismukavuutta. Kodissa on myös panostettu erityisesti makuuhuoneiden kokoon, kodinhoitohuoneeseen ja sitä kautta mentävään suihku- ja saunatilaan.
Tervetuloa katsomaan tämä viimeistelty koti ja inspiroitumaan myös oman kodin suunnittelusta!
Navigaattori ei välttämättä tunnista talonumeroa 3, mutta Dekotalon opasteet löytyvät kohteen ympäristöstä.

