Taloesittely
Porvoo
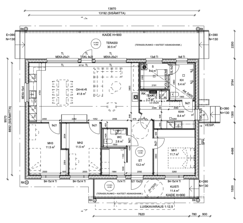
3h, k+rt+oh, khh, kph, s, wc
Tervetuloa Porvooseen tutustumaan asiakkaan itse piirtämään kotiin hienolla merimaisemalla Voolahdelle. Talo on mietitty käytännöllisyys edellä ja esimerkiksi katettu takaterassi antaa hyvän suojan niin sateelta kuin paahtavalta iltapäiväauringolta. Sisään tultaessa on hieno läpi talon näköyhteys ja reilun 11m2 makuuhuoneet on sijoitettu fiksusti idän puolelle. Kokonaisuuden kruunaavat tulisija olohuoneessa sekä puusauna isolla ikkunalla.
Tervetuloa tutustumaan kohteeseen, josta saat varmasti inspiraatiota myös oman kodin suunnitteluun.

