Taloesittely
Espoo
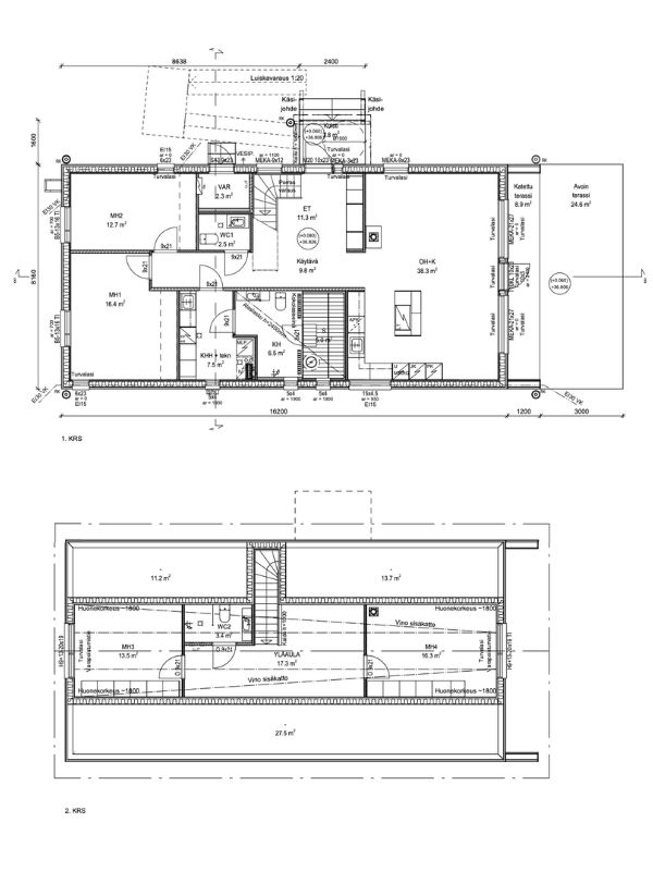
4h, k+rt+oh, 2kph, s, khh, var
Esittelyssä tyylikäs, Espooseen juuri valmistunut valoisa koti. Tässä 1,5 kerroksisessa kohteessa pääset tutustumaan osan talosta kattavaan yläkertaan, joka on mahdollistanut varsin tilavat tilat alakertaan. Kodissa on panostettu laadukkaisiin yksityiskohtiin, kuten isoihin laattoihin ja tasokkaaseen keittiöön.
Tervetuloa tutustumaan kohteeseen, josta saat varmasti vinkkejä myös oman rakennusprojektin suunnitteluun!

